
择址北京市丰台区西四环,毗邻地铁14号线医院、武警总医院、北京西站、丽泽商务区、四季青世纪金源商场等生活区。

项目遵循北宋御制《营造法式》中北高南低的建筑布局,开创性采用全景玻璃幕墙,辅以三色定制铝板,精雕细琢,打造“造极于宋,传承于今”的独特建筑风貌。

项目坚守“传递光明 温暖生活”企业使命,紧扣“以人为本 追求卓越”核心价值观,以“品质筑家”为核心,倾注匠心,致力于为每一位业主打造舒适、和谐、美好的新居所,让“绿色京能”理念深入人心。

项目自配商街及酒店配套,紧邻集中式商业MALL集群,幼小初教育资源丰富。小区内部设置了多功能双会所、全龄儿童游乐区等设施,既满足社交需求,又体现个性化服务。

据悉,在规划之初,京能西贤府的设计团队便走访了多座城市,对近5000户业主进行了大量调研,并基于对城市西贵人群的生活样本进行考量,深度调研西贵人群生活痛点,改善需求,从世界标准的“好房子”营造理念出发,倡导“回归家庭欢聚”与“多家庭社交场景”的生活方式。
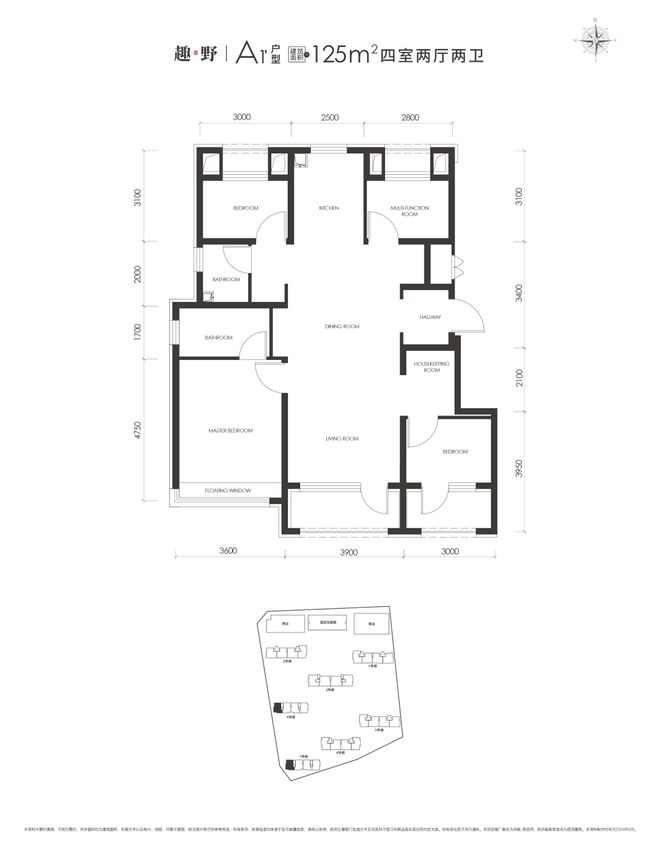
户型设计为建筑面积约125㎡-173㎡的纯粹四居改善非标奢宅,以全景观、大尺度、私密性、强收纳、灵动布局、约90%超高得房率......敬献西贵居住需求。
建筑面积约125㎡四室两厅两卫西边户户型,经典的四叶草布局,整体南北通透,户型方正全明,南向3 室朝阳,整体面宽约10.5米,主卧270°观景,双卫设计,私密生活互不干扰。
在功能分区上,以中间为界,南边2/3 为阳光区,包括两个卧室和客厅,卧室分布在客厅两边保证隔音性和私密性,北边1/3 为功能区,包括厨房、餐厅、次卧、X空间和卫生间,动静分区合理并且均能享受南北通透的舒适感。
厨房操作动线流畅;主卧是套房,北向次卧和次卫之间的动线,也尽量做到了简短,几乎是“准套房”的享受。
北侧的X空间可以根据家庭需求进行改造,可以是书房、茶室,也可以是电竞房、钢琴房。

建筑面积约154㎡四室两厅两卫,一梯一户设计,打造LDK一体化宽厅的通透设计。
LDK一体化设计将客厅、餐厅、厨房三个空间融合在一起,增加视野开阔感、通风、采光的同时,打造自在阔绰的通厅,形成家庭社交的愉悦主场。
方正大气的阔绰宽厅,藏着男主人的胸怀。闲暇的周末邀上好友共聚,谈天说地,论道风云,一场大人物的宴会,在此开场。
约6.1米宽适尺度,可以完美容纳孩子的童真空间。若孩子年纪尚小,在宽厅一侧铺上柔软地毯,摆上积木、芭比,绘上蓝天、星空;若孩子年纪稍长,赛车跑道或者优雅钢琴,也会是他们的最爱。
主卧私密空间,自带收纳衣柜,南向超大观景窗,配备干湿分离卫生间,即便是早高峰也可以有条不紊,奢享优雅尊贵。

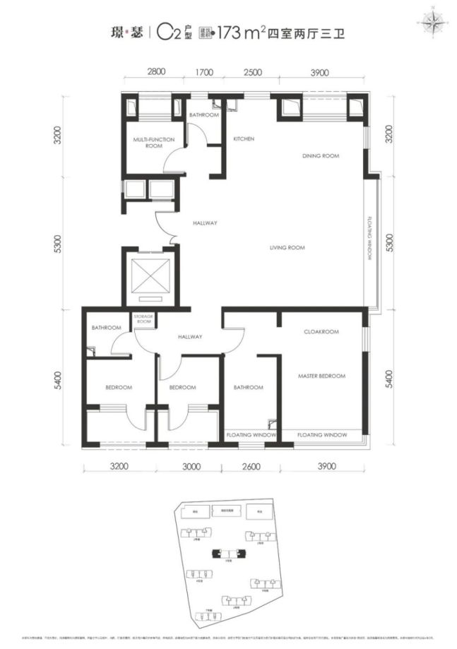
建筑面积约173㎡四室两厅三卫景观边户户型,项目楼王位置,一梯一户,拥有超赞的观景视野。
流动的空间:秉承“流动空间”理念,173㎡超级边厅将客厅、餐厅、厨房等空间,组合成连续而又流动的空间。从入户开始,独立玄关满载归家仪式感,转身之间,豁然开朗,恢弘的边厅铺陈于眼前,客厅、餐厅、厨房层层递进,空间的层次感十足。
双向的视野:通过约5.3米大落地窗,和U厨、餐厅的双向取景,京能西贤府173㎡超级边厅拥有更为丰富的观景视野,从多个角度俯瞰小区美景。落座于超级边厅之中,270°展开的取景框,让窗外的风景向室内渗透,更带来明亮、温暖的栖居环境。
南向双套房,主卧套间与长辈套间各占一角,出入动线疏而不离,日常居住合而不扰,远比一般的双套房户型更加契合两代人生活习惯的差异。

京能西贤府的户型设计,看完之后给人最大的感受就是,不拘泥于北京市场户型产品的常规套路,采取了突破性的思维,以用户居住体验及居住舒适度为解题目标,对户型进行严苛的优化,升级户型使用便捷性及互动体验,使户型更加人性化,增加更多家庭互动场景。就像项目营销负责人所说:我们想让房子回归居住属性,让家庭成员更亲密,回归家庭,热爱生活,享受生活。