
2025年1月23日4时29分,本溪支队桓仁满族自治县消防救援大队指挥中心接到报警,位于桓仁满族自治县桓仁镇新市花园1号楼6单元502室居民住宅发生火灾。火灾过火面积约10平方米,造成2人死亡。
经调查认定,此次火灾由居民杨某某家中电气线路故障引燃被褥等可燃物发生火灾。社区和派出所相关工作人员在日常工作中,已按照工作职责和相关规定,积极开展消防安全宣传、隐患排查等工作。在火灾发生时,社区工作人员第一时间到达现场协助疏散群众,派出所民警迅速维护现场秩序,配合消防救援部门开展救援工作,尽到了应有的应急处置责任。
综合考虑本次火灾事故的起因、各部门及相关单位在日常工作和应急处置中的履职情况,经火灾调查组请示县政府同意,决定对八卦城街道新市社区、桓仁镇派出所及其工作人员不予以追责。但此次火灾也暴露出消防安全工作仍存在薄弱环节,责承县消安委对八卦城街道新市社区、桓仁镇派出所等相关单位进行一次警示约谈,督促其吸取火灾教训,进一步强化居民小区的消防安全管理,加大隐患排查整治力度,持续开展消防安全宣传教育,切实保障人民群众生命财产安全。
关于“1·23”桓仁县桓仁镇新市花园1号楼居民住宅亡人火灾事故的调查报告
2025年1月23日04时29分,本溪支队桓仁满族自治县消防救援大队指挥中心接到报警,位于桓仁满族自治县桓仁镇新市花园1号楼6单元502室居民住宅发生火灾。火灾过火面积约10平方米,造成2人死亡。依据《中华人民共和国消防法》《消防安全责任制实施办法》和《辽宁省火灾事故责任调查规定》(辽政办〔2023〕33号)相关要求,县人民政府成立了火灾事故调查组开展火灾事故调查工作,并形成了《火灾事故调查报告》。
2025年1月23日04时29分,本溪支队桓仁满族自治县消防救援大队指挥中心接到报警:桓仁满族自治县桓仁镇新市花园1号楼6单元502室居民住宅发生火灾。
桓仁满族自治县大队立即调派泰山路消防救援站,共出动12名消防救援人员、2辆消防车赶赴现场处置。4时39分,泰山路消防救援站到达现场。05时02分,现场明火被扑灭。泰山路消防救援站到场用时约9分钟,行驶路程约4公里。
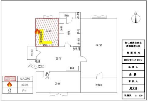
起火建筑位于桓仁镇八卦南街与中心大街十字交叉路口东南角,坐西朝东,东、南两面均为居民住宅楼、西为八卦南街,北为中心大街。该起火居民家位于该栋居民住宅楼6单元5层2号,呈“H”户型,两室半居室,建筑面积约80m²。房屋内部结构为:进户房门设在走廊北侧为金属防盗门,房门直对客厅,客厅西南为小卧室,东南角为次卧室,西南角小卧室与进户房门间为厕所,西南角小卧室北侧毗邻厨房和阳台;客厅北侧为主卧室及衣帽间。

“1·23”桓仁县桓仁镇新市花园1号楼6单元502亡人火灾事故现场平面图

2025年1月23日凌晨,死者杨某某家位于客厅西南方向的小卧室发生火灾。当时死者杨某某和妻子王某某两人在东南角次卧室睡觉。由于小卧室存放大量的衣物等可燃物,火灾发生后产生了大量的有毒烟气,充满了整个客厅、次卧、主卧,直到杨某某和妻子王某某被烟气呛醒,两人发现火情后极力地向门外逃生,但由于吸入大量的有毒烟气,王某某掉落在床下失去意识,杨某某爬到门口处失去意识。烟气从502室杨某某家钻出充满整个楼道,被居民发现火情后拨打“119”电话报警。
1月23日,火灾发生后,调查组人员按照综合协调、调查询问、现场勘验、技术鉴定等分工开展工作。
(一)起火时间的认定。起火时间约为2025年1月23日04时15分。依据:1、报警人陈述;2、现场勘验综合分析。
1.该居民家西南角小卧室全部过火,室内装修和室内物品全部烧损,炕面上留有大量被褥及装修材料炭化残骸。其他房间及客厅均未过火,但不同程度烟熏或高温炭化,地面上留有大量烟尘。

2.客厅未过火,但烟熏较重,顶棚装修材料不同程度炭化脱落,烟熏痕迹由西南角小卧室房间门上方向四周呈放射性蔓延痕迹。
4.厨房未过火,厨房铝合金侧拉门上门玻璃未破碎,但上部烟熏较重,地面上留有大量烟尘。
5.客厅北侧主卧室及衣帽间均未过火,但房间内烟熏较重,床上和地面上留有大量烟尘。
6.进户房门上方留有大量烟熏痕迹,与之对应的客厅南侧卫生间木门上方留有大量烟熏痕迹,但均未燃烧。
房间南侧墙体下方装修材料全部过火,现场只残留部分未完全燃尽的木龙骨炭化残骸,对应的中下部墙体上留有一明显的“V”字形烟熏痕迹。现场勘验同时发现此处地炕上留有一高度熔化的单体塑料插座和插头熔化残骸。其中,插头一端连接一4mm²多股绞丝铜导线m,插排残骸与床上物品熔化成较大硬结,体积约0.3m³;另一端插座留有两相断开的单股1.5mm²铝导线残骸,铝导线与南侧墙体上原有插座导线残骸吻合。

1.经对该居民家设在楼梯间配电箱现场勘验发现,该居民家断路器处于关闭状态,断路器表面留有大量灰尘,现场未发现近期有人为触碰断路器痕迹。断路器型号为:DZ47-6040C;501室居民家断路器处于开启状态。

2.经对该居民家小卧室内敷设的电气线路和用电设施现场勘验发现,该居民家西南角小卧室内除顶棚设一照明灯具外,还在南侧墙体中下部自设一黑色两相单体塑料插座。
①现场勘验发现该单体塑料插座及插头全部过火,表面炭化并凝结在一起,插座为1.5mm2单股铝线,插头的另一端导线m,为多股绞丝铜线,插排严重炭化,与地炕上泡沫垫及化纤物品凝结成较大硬块。

②与单体塑料插座对应的南侧墙体烟熏痕迹最低,最低点距地炕约10cm,烟熏痕迹由此呈“V”字形向东西两侧呈放射性燃烧蔓延痕迹。
③单体塑料插座对应的南侧墙体中下部装修的木龙骨严重烧损,地炕上只残留少许木龙骨残骸,高约10cm。与此对应的东西两侧木龙骨炭化程度依次不同程度增加,西南角和东南角下部均可见部分未完全烧损的南侧墙体下部原始装修。
3.经对该居民家用火情况现场勘验,未发现其家西南角小卧室有使用明火现象。同时,也未发现小卧室内留有火柴、打火机、香烟、蜡烛、香炉等物品残骸。
4.经对该居民家进户房门现场勘验,未发现进户房门有挤压或撬压等人为破坏痕迹。
综上所述,对该起火灾起火原因认定如下:起火时间约为2025年1月23日4时15分;起火部位为西南角小卧室;起火点为南侧墙体中下部;起火原因系电气线路故障引燃被褥等可燃物发生火灾。
该起火灾中,着火场所为个人房屋,房屋使用者为死者杨某某和王某某夫妇二人,因二位老人消防安全意识淡薄,欠缺逃生自救能力,日常生活中对家庭防火安全不重视,对家中电气线路敷设不规范、且维护缺失导致火灾发生。
1.桓仁镇公安派出所。根据《辽宁省消防条例》第十一条规定,公安派出所按照国务院公安部门消防监督检查的有关规定,负责日常消防监督检查,开展消防宣传教育。经调查,桓仁镇公安派出所作为火灾发生辖区主管派出所,在2024年冬春火灾防控工作开展以来,对该属地新市社区进行了督导检查,督促落实消防安全检查和消防宣传教育工作,相应工作职责已落实。
2.新市社区居民委员会。根据《辽宁省消防条例》第十二条规定,村(居)民委员会应当开展群众性消防工作,确定消防安全管理人,组织制定防火安全公约,协助开展消防宣传教育,进行防火安全检查。经调查,新市社区居民委员会火灾发生前,深入居民小区开展了消防宣传教育,并建立了防火巡查检查和消防宣传台账。
经调查认定,此次火灾由居民杨某某家中电气线路故障引燃被褥等可燃物发生火灾。社区和派出所相关工作人员在日常工作中,已按照工作职责和相关规定,积极开展消防安全宣传、隐患排查等工作。在火灾发生时,社区工作人员第一时间到达现场协助疏散群众,派出所民警迅速维护现场秩序,配合消防救援部门开展救援工作,尽到了应有的应急处置责任。
综合考虑本次火灾事故的起因、各部门及相关单位在日常工作和应急处置中的履职情况,经火灾调查组请示县政府同意,决定对八卦城街道新市社区、桓仁镇派出所及其工作人员不予以追责。但此次火灾也暴露出消防安全工作仍存在薄弱环节,责承县消安委对八卦城街道新市社区、桓仁镇派出所等相关单位进行一次警示约谈,督促其吸取火灾教训,进一步强化居民小区的消防安全管理,加大隐患排查整治力度,持续开展消防安全宣传教育,切实保障人民群众生命财产安全。
(一)安全监管部门履职仍需提升合力。居民小区消防安全监管涉及消防、公安、住建、街道等多个部门,在排查整治过程中,部分行业部门未能充分发挥自身贴近基层群众的优势,针对特殊困难群体的消防关怀和安全指导也存在缺失,没有形成常态化、长效化的帮扶机制;公安派出所和社区日常工作繁杂,致使住宅小区消防安全监管还有待加强;住建部门对物业服务企业消防安全管理缺乏常态化监督,缺乏后续跟踪和问责机制,在消防设施维护、更新和消防安全管理上投入还不足;乡镇(街道)对无物业小区的消防排查整治缺乏常态化机制,对有物业小区网格员工作缺乏有效的监督和考核,责任落实还不到位。
(二)消防网格化管理作用有所弱化。乡镇(街道)、村(社区)责任意识不强,对消防工作重视程度不高;基层网格员职责落实还不到位,部分网格员多为兼职,致使精力不足,缺乏主动参与消防安全工作的积极性和主动性,对辖区内的居民小区及住宅的消防检查工作流于形式,未能深入细致排查;对于事前预防和风险控制的措施较为有限,对辖区内的重点场所、重点人群、重点隐患掌握不全面,存在盲区和漏洞,日常防火巡查检查的质效不高。
(三)消防安全宣传教育针对性还不强。在贴近普通群众接地气宣传方面还有不足,单向、被动的灌输式宣传教育缺乏吸引力和生命力,民众参与度不高;宣传方式方法缺乏创新,群众喜闻乐见的不多,导致宣传工作效率层层递减;消防宣传重点人群接受能力有限,孤寡老人、残疾人、流浪汉、酗酒者、精神智障等特殊群体,由于身体、心理或社会环境的特殊性,往往对消防安全宣传教育的接受度较低,即使听了也难以记住或付诸实践;部分居民因工作繁忙或对宣传不感兴趣,未能参与宣传活动。
(四)部分群众消防安全意识还比较淡薄。部分居民消防安全常识知晓率不高,对火灾的预防、逃生和灭火方法了解不足;部分居民存在侥幸心理,认为火灾不会发生在自己身上,因此对消防措施不够重视,室内可燃装修,大量堆放杂物;部分居民特别是高龄人群的用火、用电、用气安全意识不强,对电气线路、煤气管道等老化不及时更换,线路敷设混乱且长期超负荷使用插座、使用老化或损坏的电器设备;部分居民忽视小火源,对烟头、艾灸、蜡烛、香火等小火源不重视,随意丢弃或放置;虽然多部门不定期组织开展“三清三关三查”工作,仍有部分居民消防安全意识淡薄,与执法部门“打游击”,存在拖延整改、敷衍整改的情况。
(一)完善消防安全责任体系。推动政府进一步落实消防安全领导责任,将消防安全工作纳入政府重要议事日程,定期研究解决消防安全重大问题。明确各部门、各行业的消防安全监管责任,建立健全部门之间的信息通报、联合执法等工作机制,形成齐抓共管的工作格局。督促乡镇、街道认线”亡人火灾事故的教训,落实属地管理责任,加强消防安全网格管理。督促公安派出所加强对物业服务企业、村(居)委会履行消防安全职责的督促与指导。对因消防安全责任不落实导致发生火灾事故的,依法依规追究相关单位和人员的责任。
(二)深化火灾隐患排查整治。组织各相关部门、各乡镇街道对全县范围内的居民住宅、老旧小区、人员密集场所等重点区域进行全面、深入的火灾隐患排查。建立详细的隐患台账,明确整改责任人和整改期限,实行销号管理,确保隐患得到及时有效地整改。加大执法力度,对存在严重火灾隐患且拒不整改的单位和个人,依法予以严肃处理。定期开展火灾隐患排查整治“回头看”工作,防止隐患反弹,建立健全火灾隐患排查整治长效机制,巩固整治成果,不断提升火灾防控水平。加强对“三合一”场所、群租房等火灾高风险区域的整治,坚决杜绝“小火亡人”事故的再次发生。
(三)加强消防安全宣传教育。制定全面的消防安全宣传教育计划,开展形式多样、内容丰富的宣传活动。要利用社区(村屯)广播、社区宣传栏等载体,广泛宣传防火措施和方法,组织基层村(居)委会、网格员开展“敲门入户”式宣传活动,传授用火、用电、用油、用气安全知识,编写易记易用的口号及标语,让群众牢牢绷紧安全用火用电这根弦,并针对不同季节的火灾特点开展有针对性的宣传教育工作,重点针对无人照料的老弱病残等群体开展针对性的教育与帮扶,不断增强居民群众的火灾防范意识及逃生自救能力。要持续推动消防安全教育进学校、进企业、进社区、进农村、进家庭等“五进”活动,营造全社会“关注消防、参与消防”良好氛围。
(四)推进消防设施建设与维护。积极争取政府支持,加大对消防设施建设的投入力度。为老旧小区、农村地区等消防设施薄弱区域配备必要的消防器材和设备,如灭火器、消火栓、烟雾报警器等。加强对已建成消防设施的维护和管理,建立定期巡检制度,确保消防设施始终处于完好有效的状态。对损坏、失效的消防设施及时进行维修和更换,保障其在火灾发生时能够正常运行。推动智慧消防建设,利用物联网、大数据等技术手段,实现对消防设施的实时监控和远程管理,提高消防设施管理的信息化、智能化水平。
(五)强化应急救援能力建设。加强消防救援队伍建设,充实人员力量,优化装备配备,提高队伍的专业化、职业化水平。加强实战化训练和演练,针对居民住宅火灾等常见事故类型,制定科学合理的应急预案,并定期组织演练,不断提高队伍的应急响应和协同作战能力。建立健全应急救援联动机制,加强与公安、医疗、电力、供水等部门的沟通协作,实现信息共享、资源整合、协同作战,形成强大的应急救援合力。加强对乡镇、社区等基层消防力量的指导和培训,提高其初期火灾扑救和应急处置能力,构建覆盖城乡的灭火救援网络。